LIEBIG® SUPERPLUS ILS M8-14/80

ARTICLENUMBER9650814080

Simply the best heavy duty self-undercutting anchor in the world

  • Automatically self-undercutting, unique heavy duty anchor for pre-set installations.
  • Simplest, quickest and safest solution on the market.
  • Economical: No special drill bits, undercut tools or setting tools.
  • Minimal expansion forces allow for small spacings and edge distances.
  • ZP for dry indoor and temporary outdoor use.

Product overview

Packaging

Carton: 25 / Pack: 125 / Pallet: 7000

Weight

87 g

EAN

4061245001128

Material

steel

Surface

zinc-plated

Suitable Conditions

Dry indoor

Applications

  • Suspension systems
  • Power plants
  • Guardrails
  • Machines
  • Base plates
  • Small edge distances or spacings

Base Material

Suitable for

Natural stone
Non cracked concrete

Technical Data

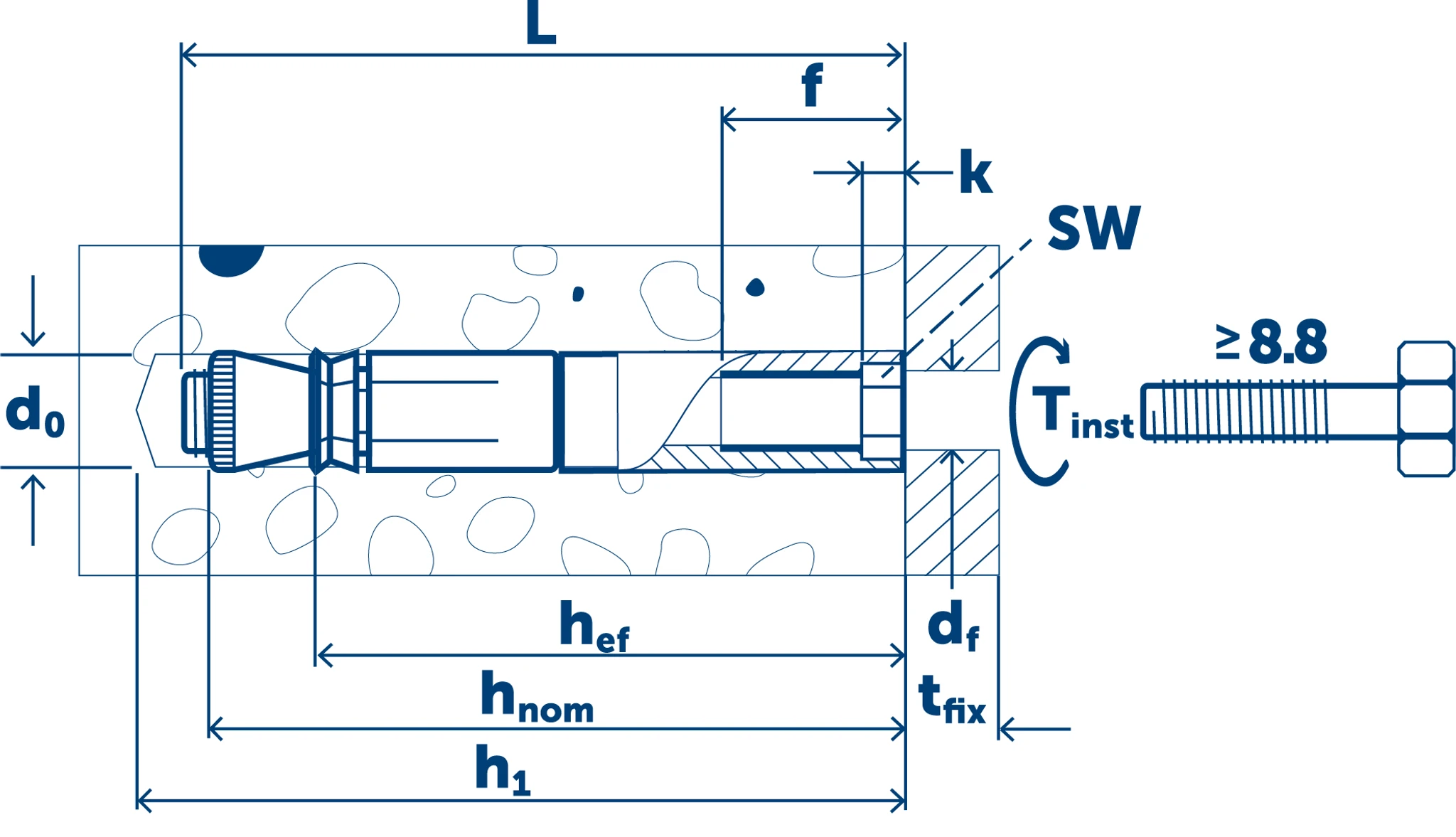
Length (L)

95 mm

Thread

M8

Inner drive

SW8

Head height

4 mm

Drill hole diameter (d0)

14 mm

Hole in fixture (df)

10 mm

Nominal setting depth (hnom,1)

93 mm

Effective setting depth (hef,1)

80 mm

Drill hole depth (h1,1)

100 mm

Installation torque max (Nm) (Tinst)

25

Minimum base material thickness (hmin,1)

160 mm

Approvals / Certificates

ETA & DOP (ETA-01/0011)
Fire resistance (ETA-01/0011)
CE Sign (ETA-01/0011)
Seismic resistance (ETA-01/0011)

Performance Data